Nave logística en alquiler en Madrid, Alcobendas de 6727m²
SKU: MPL_0765
TIPO DE ACTIVO: Nave logística
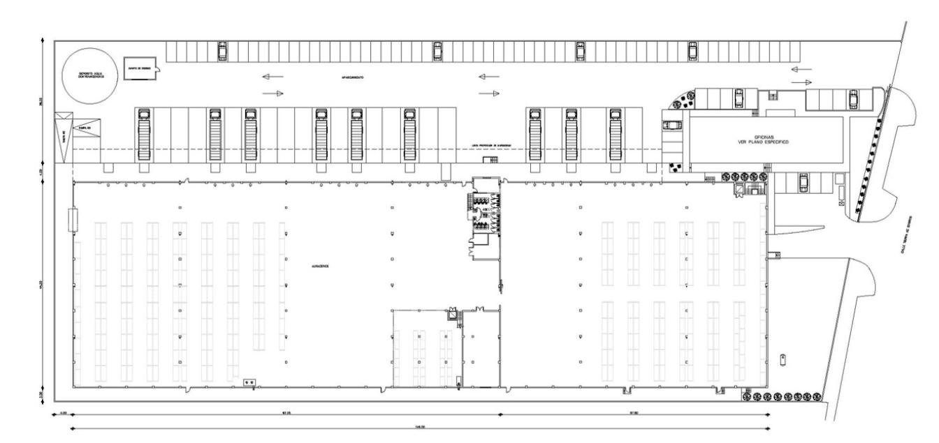
N. MuellesCaracterísticas
- BIES
- Iluminación Nave: LED
- Complejo Cerrado
- Cerramiento Nave: Bloque Hormigon
- Estructura Nave: Hormigón
- Cubierta Nave: Sandwich
- Solera Nave: Hormigón Pulido
- Portones: 8
- Características Oficinas Nave: Ascensor;Falso Techo;Instalación De Aire Acondicionado
Descripción
Situado entre los kilómetros 14 y 18 de la Autovía de Burgos, cuenta con una completa red de comunicaciones debido a su proximidad con la intersección de la A-1 y la M-40, además de la llamada variante de Alcobendas (M-100) y del tercer cinturón metropolitano de Madrid (M-50).
Estructura de Hormigón.
Cerramiento de Prefabricado de Hormigón.
Cubierta Plana Sándwich.
Altura Libre: 11,59 metros.
Muelles: 12.
Portones: 8
BIES.
Suelo Nave: Hormigón Pulido.
Iluminación LED.
Recinto Vallado.
Iluminación de oficinas Luminarias. Emp.
Falso Techo.
Climatización AACC.
Ascensor.
¿Necesitas más información?
Propiedades similares
Estructura de hormigón prefabricado. Cubierta tipo sándwich con aislamiento intermedio tipo IBR-80. Paramento vertical de fábrica de bloque hasta 1 m. Cerramiento de chapa tipo sándwich in situ con aislamiento interior de fibra de vidrio. Solera de hormigón. 6 muelles, 2 puertas seccionales a nivel de nave. Puertas peatonales metálicas. BIES. Instalación de rociadores. Pulsadores manuales de alarma de incendios. Sirenas acústicas analógicas.

Se trata de una estructura porticada en formación de cubierta multi agua en base a una retícula general con cuatro pórticos de vigas delta de 23,85 m de luz, dos de 17,39 m de luz y uno de 23,10 m de luz. En la dirección perpendicular todos los vanos tienen 5,56 m de luz, correspondiendo a la distancia entre correas. La estructura de la nave y del edificio de oficinas es de hormigón armado prefabricado en soportes, vigas y pórticos, incluso en las correas de sustentación de la cubierta, excepto las entreplantas de la nave, que están construidas con perfiles metálicos de acero laminado.

Suelo de cemento pulido Alarma vía radio Parking interior y exterior Puertas de acceso para camiones Centro de Transformación 630 Kva (Naves 1 y 2) Centro de Transformación 250 Kva (Nave 3) Fuerza Luz, agua, teléfono Y fibra óptica. Puentes grúa (Nave 3) Instalación contra incendios. Grupo de presión. BIES Servicios y vestuarios Puerta eléctrica de acceso al recinto
