Nave logística en alquiler en Guadalajara, Azuqueca de Henares
N. MuellesCaracterísticas
- Extintores
- BIES
- Distancia De Maniobras Desde Muelles: 35
- Sistemas PCI
- Solera Nave: Hormigón
- Estructura Nave: Hormigón
- Cerramiento Nave: Mixta
- Aljibe
- Características Oficinas Nave: Vestuarios
- Exutorios
- Hidrantes
- Sobrecarga Solera Nave (Kg/m2): 7000
- Altillo Nave: 484
- Número De Sectores: 6
- Superficie Campa: 13819
Descripción
Nave logística situada en el P.I. Senna en Azuqueca de Henares, Guadalajara. A 42 km. del centro de Madrid, a 35 km. del Aeropuerto Adolfo Suárez Madrid-Barajas y a 12 km. de Guadalajara capital. Conexión directa con la autovía A-2, en el Km 44, M-50, M-45 y M-21. Autobús: 220, 221A, 222, 223, 224ª Y 226.) Cercanías C2. Estación Azuqueca de Henares
Altura libre: 10,80 m
Estructura de hormigón.
Resistencia solera: 7.000 Kg/m²
Cerramiento y cubierta de panel sándwich de 30 mm de acero lacado y aislamiento inyectado de poliuretano
Recinto cerrado y vigilado
Rociadores K22
Riesgo medio-5
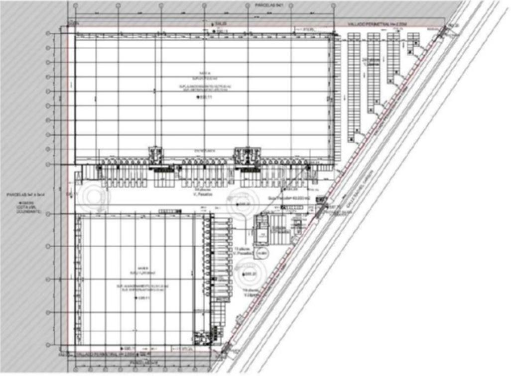
21 muelles:
Módulo 1: 8 Und.
Módulo 2: 7 Und.
Módulo 1: 6 Und.
Superficies disponibles
Módulo: 1
- Superficie: 4379m2
- S. oficina: 462m2
- Alquiler: 3,95€/mes
- Venta: A consultar
Módulo: 2
- Superficie: 3630m2
- S. oficina: 389m2
- Alquiler: 3,95€/mes
- Venta: A consultar
Módulo: 3
- Superficie: 2233m2
- S. oficina: 187m2
- Alquiler: 3,95€/mes
- Venta: A consultar
¿Necesitas más información?
Propiedades similares
Altura interior libre de hasta 12 m. Plataforma totalmente diáfana Playa de maniobras desde 35 m Muelles: 8. Rampa de acceso: 1. Iluminación y ventilación natural. Oficinas equipadas con A/C frío – calor y aseos. Parking para vehículos y camiones Sala de carga de baterías. Riesgo Medio de fuego Nivel 5. Alarmas, iluminación de emergencia, BIES, extintores, exutorios, iluminación LED, bombas de presión de agua, Sprinkles tipo ESFR, cuadro eléctrico y tomas de corriente. Recinto vallado con seguridad y control de accesos. Instalación de paneles fotovoltaicos para autoconsumo.

Nave Tipo C Muelles: 14. Rampa: 1.Cubierta plana Sándwich. Estructura de Hormigón y Cerramiento: Prefabricado Hormigón. Iluminación Led. Sala de baterías. BIES. Rociadores. Exutorios. Suelo nave: Hormigón Pulido. Falso techo en oficinas. Oficinas climatizadas. Parking. Recinto Vallado. Amplias campas de maniobras. Aparcamiento ligero: 264 Plazas. Aparcamiento pesado: 66 plazas. Nave Logística, está a solo 13 km al sur del centro de Madrid. Su ubicación privilegiada, cerca de principales carreteras e infraestructuras, incluye una conexión directa con la estación de tren.

Compuesta por dos módulos, el 1 de 12.472 m² y el 2 de 12.873 m². El módulo 1 cuenta con recinto APQ. Estructura de hormigón prefabricado. Cubierta aislada. Solera de hormigón. Muelles de carga con puertas seccionales. Luminarias. Alumbrado de emergencia. Bies. Detección de incendios. Sirenas acústicas. Caseta vigilante. Aseos. Calefacción. Área de oficinas en ambas instalaciones.

