Nave industrial en venta en Madrid, Arganda del Rey
SKU: MNAV_0911
TIPO DE ACTIVO: Nave industrial
Características
- BIES
- Portones: 2
- Detectores De Humos
- Características Oficinas Nave: Aseos
- Aljibe
- Luminarias
- Vestuario
- Sobrecarga Solera Nave (Kg/m2): 1000.00
Descripción
Nave industrial en el término municipal de Arganda del Rey. Las vías de acceso son la A-3, M-50 y M-45 además del fácil acceso tanto a la M-40 como a la M-30. Todas estas vías tienen una gran capacidad portante para el tráfico rodado.
Metro Línea 9.
Inter-Urbano: Líneas: 311; 313; 330; 331; 332: 333; 334; 337; 351; 352 y 353.
Instalación eléctrica. Luminarias. Instalación de gas. 1 Ascensor. 3 montacargas (5Tm y 3.5Tm). 3 accesos rodados en planta calle. 1 acceso con rampa a 1ª planta. 2 muelles. Nave calefactada y climatizada. Servicios y vestuarios en plana baja y baños en todas las plantas. Comedor. Transformador. Instalación contraincendios: Detectores. Pulsadores. BIES. Grupo de presión y aljibe. Alturas: Sótano 3,10 m. Planta baja 4,70 m. Planta 1ª: 6,10 m en el centro. 3-3,80 m en los laterales.
¿Necesitas más información?
Propiedades similares
Sup Parcela: 19.125 m² Playa de Maniobras: 32 m Recinto perimetral cerrado con controles de acceso. PCI Riesgo Medio 5 con Rociadores. (Edificio Tipo C) Plazas de parking: 126. Fachada Prefabricado hormigón de 20 cm con 10 cm de Porex o similar Estructura Prefabricado de hormigón en gris Cubiertas Membrana sintética de TPO de 1,20 mm en color blanco. Plataforma logística multi-inquilino, con posibilidad de arrendar módulos de manera individual o conjunta. Solera Hormigón resistencia de 5 T/m².

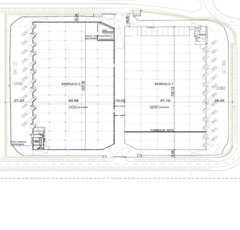
Nave logística dividida en dos módulos. Muelles de Trailers: 16 (8 por módulo) Muelles delanteros para furgonetas: 4 (2 por módulo) Muelles traseros para furgonetas: 10 (2 módulo A y 8 Módulo B) Altura 10,50 m Cerramiento de hormigón Estructura de hormigón PCI (Riesgo medio 5)

Compuesta por dos módulos, el 1 de 12.472 m² y el 2 de 12.873 m². El módulo 1 cuenta con recinto APQ. Estructura de hormigón prefabricado. Cubierta aislada. Solera de hormigón. Muelles de carga con puertas seccionales. Luminarias. Alumbrado de emergencia. Bies. Detección de incendios. Sirenas acústicas. Caseta vigilante. Aseos. Calefacción. Área de oficinas en ambas instalaciones.

